Входная металлическая дверь из массива с терморазрывом MD-16
Цена указана за стандартный размер 2000х800мм.
По желанию заказчика возможно изготовление двери любых размеров.
По желанию клиента возможно изготовление двери с использованием листов стали: 3 мм. 4мм. 5мм.
А также усиление замкового кармана сталью до 7мм.
На сайте размещены фотографии которые могут незначительно отличаться от "живого" внешнего вида. Это связанно с невозможностью правильно отобразить цвет на всех устройствах просмотра сайта (зависит от настроек цветовой гаммы вашего устройства).
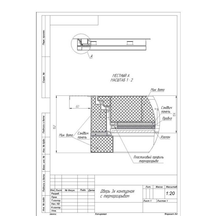
ЧТО ТАКОЕ ТЕРМОРАЗРЫВ?
Как известно из законов физики, все материалы передают свое тепло от теплого к холодному. И двери тут тоже не исключение. Жителей панельных домов данная проблема не касается, а вот тех, у кого частный дом и дверь выходит в неотапливаемое помещение или на улицу эта проблема коснется обязательно. Зимой, при низких температурах, через железную дверь из дома уходит тепло, а сама дверь остывает и на ней образовывается сначала конденсат, а потом - ледяная корка. Браться зимой за обледеневшую ручку, чтобы открыть дверь - сомнительное удовольствие. Уже не говоря о том, что на конструкции двери такой режим эксплуатации сказывается самым пагубным образом, а расход энергии на обогрев дома возрастает.
Чтобы этого избежать придумана технология терморазрыва, когда внешняя и внутреняя часть двери не имеют непосредственного контакта между собой, а только через специальный теплоотражающий материал с низкой теплопроводностью.
МДФ-ПАНЕЛЬ.
Красивый, долговечный, прочный и экологически чистый материал МДФ, используемый для декоративной отделки металлических дверей — прекрасный вариант.
Внешним видом и техническими качествами МДФ практически идентичен натуральному дереву, однако находится в более доступной ценовой категории.
Также древесно-стружечные плиты средней плотности (именно так переводится аббревиатура МДФ) являются хорошим звукоизолятором и в них не содержится никаких вредных для Вашего здоровья веществ, в отличие от ДСП-плит.
МДФ-плита обеспечивает хорошую стойкость к воздействию внешней среды, деформациям, мало подвержена горению и растрескиванию, что делает металлические двери с таким покрытием более привлекательными для покупателей с различным уровнем запросов.
МДФ плита бывает толщиной от 6 до 16 мм, что позволяет нанести на нее любой рисунок из каталога, либо даже сделать рисунок по желанию заказчика, чтобы подчеркнуть
его индивидуальность.
Также МДФ обладает хорошей звукоизоляцией, что особенно понравится обладателям шумных соседей по лестничной клетке.
Единственное ограничение при его применении МДФ - его нельзя устанавливать на улице, в зоне прямого контакта с осадками и солнечным светом. Для этого мы рекомендуем покрытие VINORIT или порошковое напыление. Или козырек над дверью.
ЗАМОК BORDER G 8-6
Замок врезной сувальдный 4-го класса.
Замок закрывается на два оборота, выход засова - 21 мм.
В комплекте 4 ключа длиной 112 мм.
Размер корпуса 97,5х90 мм, планки 180х30 мм.
Покрытие лицевой планки - никель.
ЗАМОК BORDER G 9-6
Замок сувальдный врезной с защелкой, управляемой ручками.
Выход засова составляет 21 мм за два оборота ключа.
В комплекте 4 ключа длиной 112 мм.
| Внешнее покрытие | Массив |
| Внутреннее покрытие | Массив |
| Толщина дверного полотна | 105 мм. |
| Толщина дверной коробки | 165 мм. |
| Толщина стали | 2 мм. |
| Вес двери | 95 - 110 кг. |
| Звукоизоляция | 38 dB |
| Цинко-грунт | LIQUI MOLY Германия |
| Коэффициент теплопередачи | 1,1 W/m2*K |
| Ребра жесткости | Продольные и поперечные |
| Уплотнитель | трехконтурный |
| Петли | 3 петли на опорном подшипнике |
| Замок основной | BORDER G 8-6 сувальдный |
| Замок дополнительный | BORDER G 9-6 сувальдный |
| Ручка | хром, золото |
| Задвижка ночная | есть |
Доставка и установка
Стоимость доставки и установки входных дверей
| Наименование вида работ | Цена, руб. |
| Вызов мастера–замерщика | Бесплатно! |
| Доставка двери при заказе установки в пределах МКАД | Бесплатно! |
| Доставка двери при зазказе установки за МКАД | 800 руб. + 30 руб./км. |
| Доставка двери без установки по Москве и Московской области | 1500 руб. + 30 руб./км. от МКАД |
| Стандартная установка двери | от 3000 руб. |
| Демонтаж деревянной двери | от 500 руб. |
| Демонтаж железной двери | от 1000 |
| Подъем дверного блока на этаж без грузового лифта | от 250 руб./этаж |
| Расширение дверного проема, одна сторона: (до 5 см.) | от 1000 руб. |
| Расширение дверного проема, одна сторона: (более 5 см.) | от 1500 руб. |
| Расширение дверного проема, верх/низ: (до 5 см.) | от 500 руб. |
| Расширение дверного проема, верх/низ: (более 5 см.) | от 1000 руб. |
| Срочная установка двери в день заказа | +1000 руб. к стандартной установке |
| Выезд на ремонтные работы | Согласно прайсу |
| Закладка дверного проема пеноблоком | от 2500 руб. |
| Утепление дверного короба минеральной ватой | 800 руб. |
| Врезка глазка | 800 руб. |
| Врезка ночной задвижки | 1000 руб. |
| Монтаж двери без доступа к электричеству | 500 руб. |
| Замена замка, фурнитуры, цилиндра (выезд в стоимость не входит) | 600 руб. |
| Аварийное вскрытие двери (без учета материалов на восстановление) | 3000 руб. |
Стоимость монтажных работ не учитывает:
- Стоимость дверной конструкции;
- Отделку дверных откосов;
- Штукатурные работы, отделку пола;
- Демонтаж и последующую прокладку кабелей;
- Подгонку плинтусов;
- Уборку и вывоз мусора.
Внутренняя отделка







































































